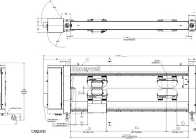
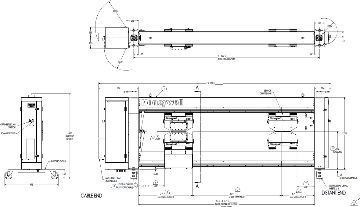
General information:
– Built by Honeywell
– Model 6088
– Year installed 2020
– Width of paper 5.600 mm
– Included heat exchanger
– Dismantled and ready to sell it

